Neubau Riederalp Malischa

Ein Projekt der WOGENO Aletsch

Mehrfamilienhaus Riederalp

Das geplante Wohnhaus Malischa mit acht Wohnungen auf der Riederalp liegt an der Aletschpromenade zwischen der Bergstation Riederalp Ost und der Moosfluhbahn.

Es entstehen folgende Mietwohnungen:
2 x 2 1/2-Zimmer-Wohnungen
4 x 3 1/2-Zimmer-Wohnungen
2 x 4 1/2-Zimmer-Wohnungen

Bezgusbereit voraussichtlich im Herbst 2025.

Wohnungen EG

Im Erdgeschoss befinden sich zwei 2 1/2-Zimmer-Wohnung.

Wohnungen 1. und 2. OG

In den Obergeschossen befinden sich je Stockwerk eine 4 1/2-Zimmer-Wohnung und eine 3 1/2-Zimmer-Wohnungen.

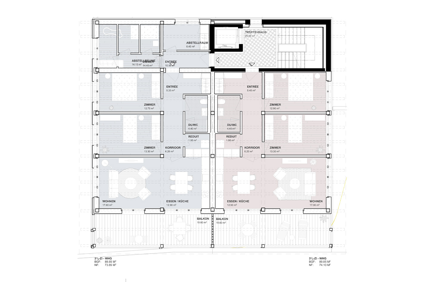
Wohnungen DG

Im Dachgeschoss befinden sich zwei 3 1/2-Zimmer-Wohnungen.

WOGENO Aletsch

c/o Gemeindeverwaltung Riederalp
Schulhausweg 1
3986 Ried-Mörel